4810 Cannon CresPender Island BC
151 Devine DrSalt Spring BCSalt Spring Island
154 Cormorant CresSalt Spring BCSalt Spring Island
255 Ricardo RoadGabriola Island BC
255 Ricardo RdGabriola Island BC
125 Bellhouse RoadGaliano Island BC
1671 North Beach RdSalt Spring BCSalt Spring Island
210 Epron RdSalt Spring BCSalt Spring Island
1208 North RdGabriola Island BC
99 Garner RdSalt Spring BCSalt Spring Island
274 Merryman DriveMayne Island BC
15140 Porlier Pass RoadGaliano Island BC
150 Liberty Hall LaneSalt Spring BCSalt Spring Island
514 Aya Reach RdMayne Island BC
514 Aya Reach RoadMayne Island BC
456 Dukes RdSalt Spring BCSalt Spring Island
9868 Castle RdPender Island BC
315 Deacon LaneGaliano Island BC
685 Rollo RdGabriola Island BC
9868 Castle RoadPender Island BC
338 Walkers Hook RdSalt Spring BCSalt Spring Island
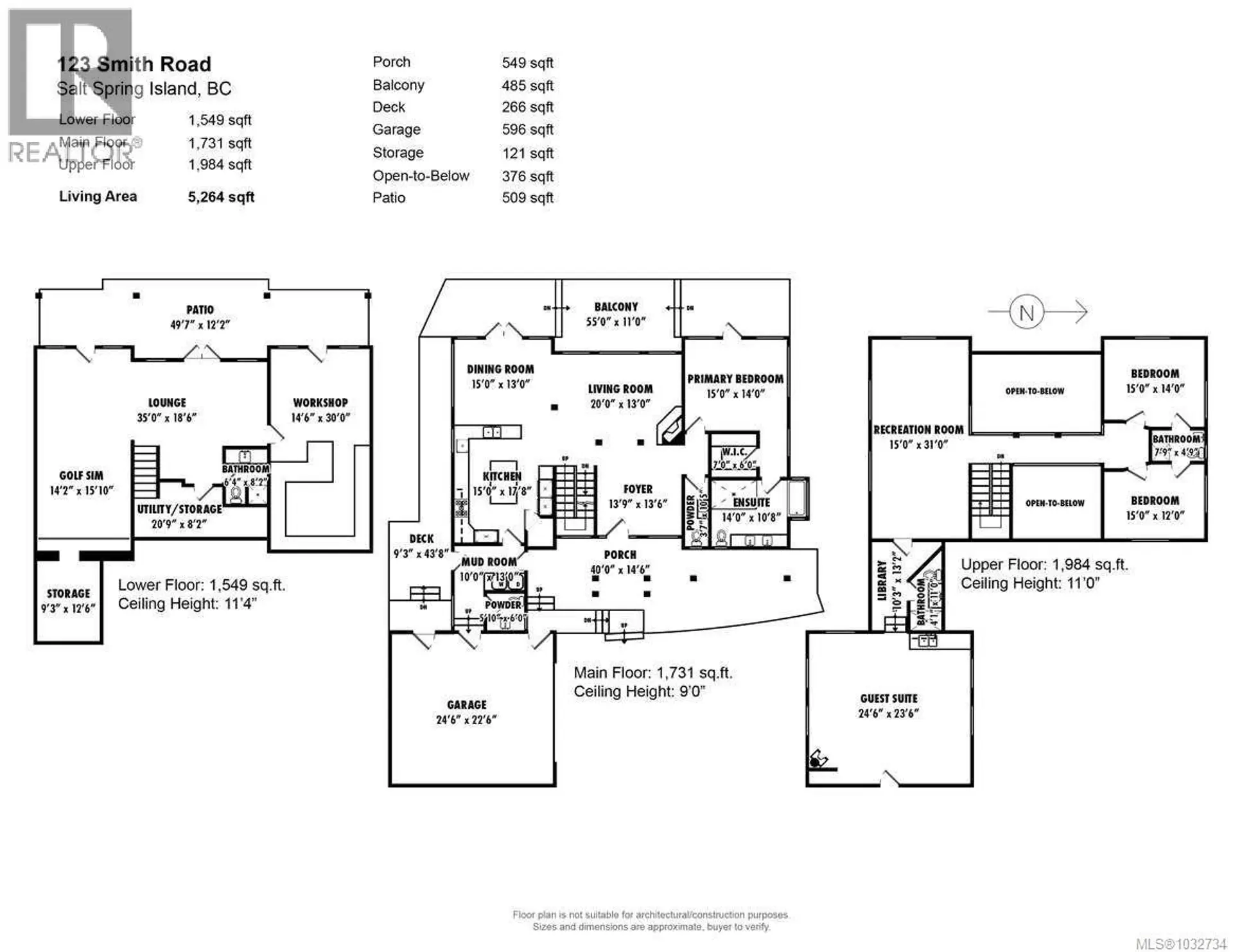
123 Smith RdSalt Spring BCSalt Spring Island
108 Tern RdSalt Spring BCSalt Spring Island
674 Gallagher WayGabriola Island BC