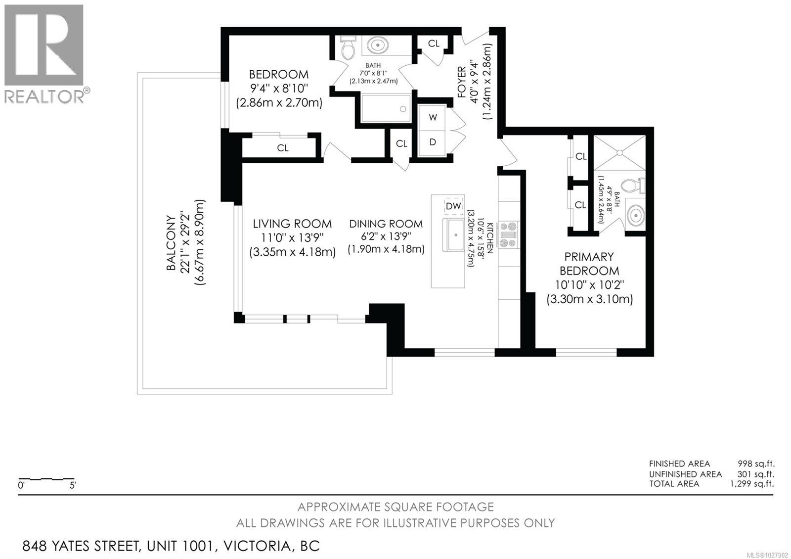
For Sale: #1001 848 Yates St, Victoria, BC V8W 0G2 | Zealty