




































MLS® 1018866 |
Oak Bay | Estevan
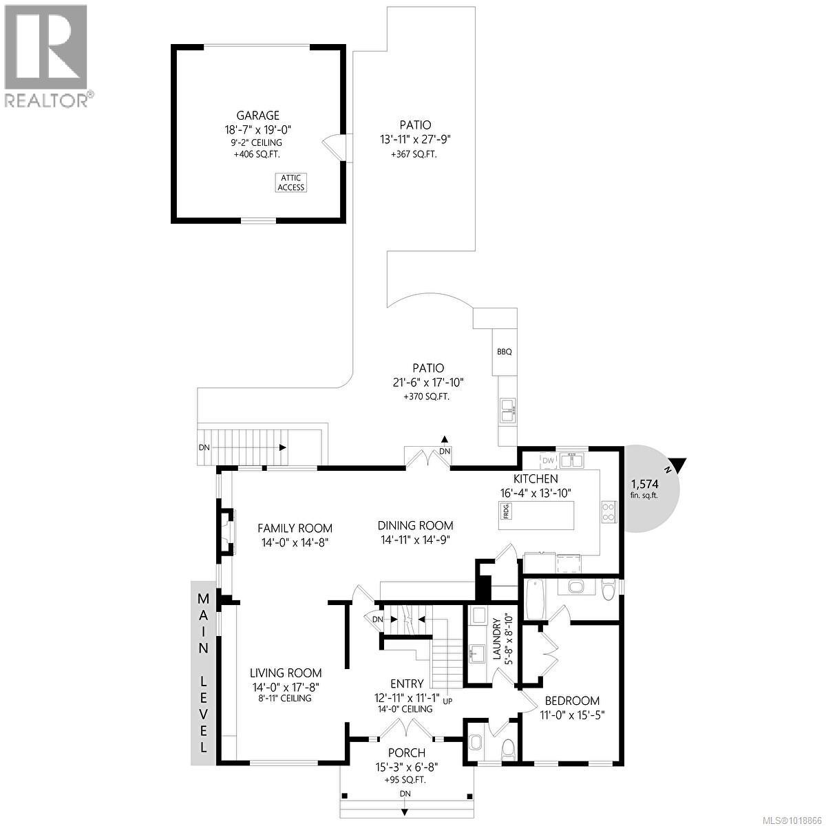
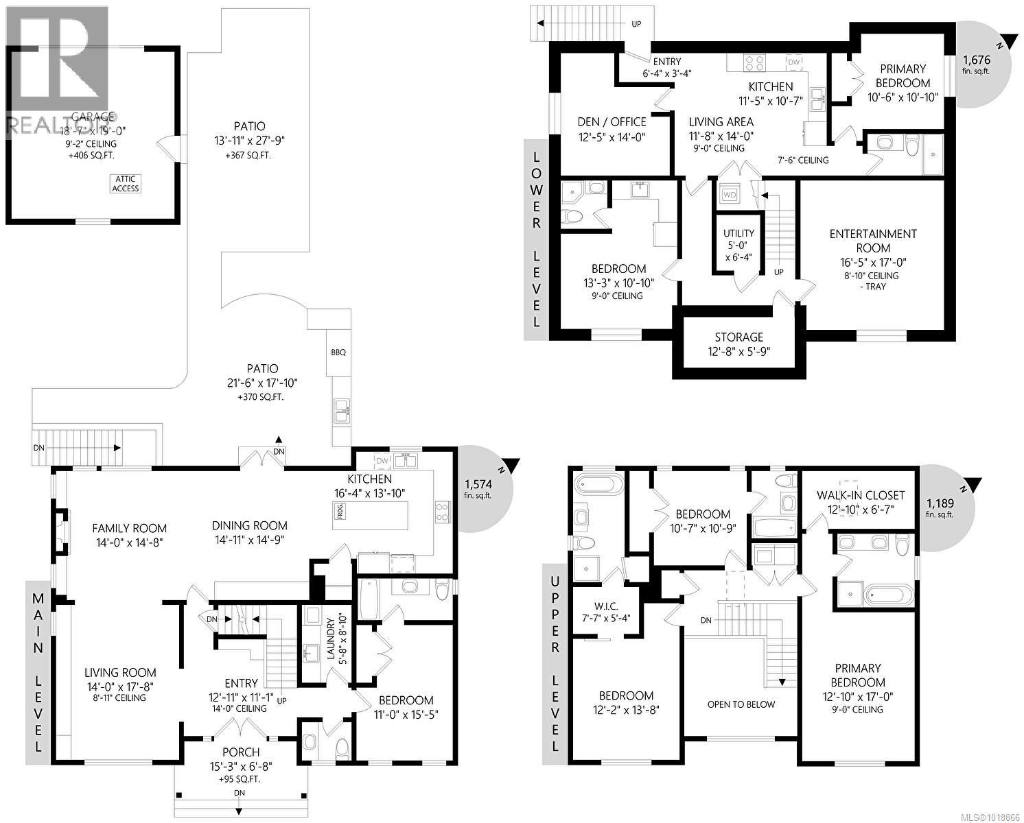
Oak Bay 2018-custom-built home with 4,400+ sf of living space! 7 bedrooms and 7 bathrooms! Nestled on a quiet street in coveted Estevan. Main level: formal living room, family room, a gourment kitchen with commercial quality SS appliances including a built-in fridge, pantry, plus a separate guest room/bedroom with its ensuite. Upper level (9' ceiling): TWO primary bedrooms + 1 additional bedroom, each with its own SPA like ensuite. A self-containing 2-bedroom suite and a separate studio/kitchenette are located on the lower level. Heat pump, radiant floor, wine cellar, rec room (pre-wired for speakers and a projector), the list goes on. Beautifully landscaped west-facing garden combined with an outdoor kitchen, over 500 sf stamped concrete patio and a serene water feature and pond. Just steps to Willows Beach, Estevan Village, top-rated schools, and Oak Bay Rec - this is the one you've been waiting for. (id:60457)
| Property Type | House |
| Style of House | Westcoast, Contemporary |
| Bedrooms | 7 |
| Bathrooms | 7 |
Asking Price | $2,549,000 |
Floor Area Price per SqFt | 4,845 sqft $526 |
| Age | 7 years (2018) |
Land Size Price per Land SqFt | 0.17 ac (7,360 sqft) $346.33 |
| Property Taxes | $15,650 |
| Ownership Interest | Freehold |
| PID | 005-001-471 |
| Seller's Agent | Pemberton Holmes Ltd. |
| ✓ Central location | ✓ Rectangular |
| ✓ Marine Oriented | ✓ Air Conditioned |
| Year | Total | Land | Impr. | YoY Change | Taxes |
|---|---|---|---|---|---|
The displayed rates are provided as guidance only, are not guaranteed, and are not to be considered an approval of credit. Approval will be based solely on your personal situation. You are encouraged to speak with a Mortgage Professional for the most accurate information and to determine your eligibility.
| School Name | Address | Details |
|---|---|---|