























| Pricing | |
| Asking Price | $229,900 |
| Price per Floor SqFt | $249 |
| Taxes & Fees |
| Property Taxes | $1,289 |
| Maintenance Fee | $675 |
| Maint. Fee per SqFt | $0.73 |
| Home Details |
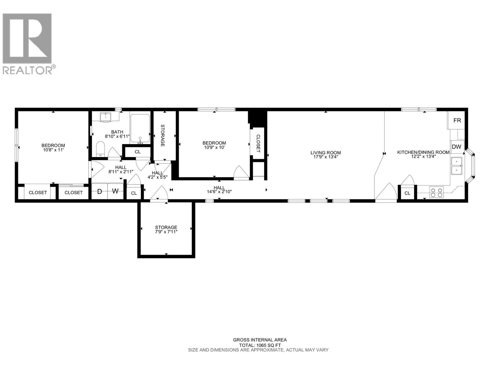
| Floor Area | 924 sqft |
| Age | 46 years (1980) |
| Property Info |
| Property Type | Manufactured Home |
| Bedrooms | 2 |
| Bathrooms | 1 |
| PID | 000-000-000 |
| Agents |
| Seller's Agent | RE/MAX Real Estate (Kamloops) |
Login to view more details
Sign in| More Details | |
| Additional Info | |
| Hidden Field | |
| Private Data | |
Login to view Room Information
Sign inWe'll connect you with a local agent to show you this home. All Zealty agents go through a strict selection process, and none pay to work with us.
Login to view Price History
Sign inAssessment and tax information is not available for this property.
Mortgage Calculator
The displayed rates are provided as guidance only, are not guaranteed, and are not to be considered an approval of credit. Approval will be based solely on your personal situation. You are encouraged to speak with a Mortgage Professional for the most accurate information and to determine your eligibility.
Advertising Disclosure: Mortgage services are provided by independent third-party advisors. Zealty.ca is a real estate portal and does not arrange mortgages or provide financial advice. The advisors listed here pay a flat marketing fee for advertisement space. Users are encouraged to conduct their own due diligence.
Market Statistics
| All Active | This Property | |
|---|---|---|
| Pad | 1,250 | – |
| Median Asking Price | $875,000 | $229,900 |
| Median Price per SqFt | $650 | $249 |
| Median Days on Market | 28 | – |
With Trusted Kamloops & Area Agents
No school information is available for this area.
We couldn't find any similar active properties.