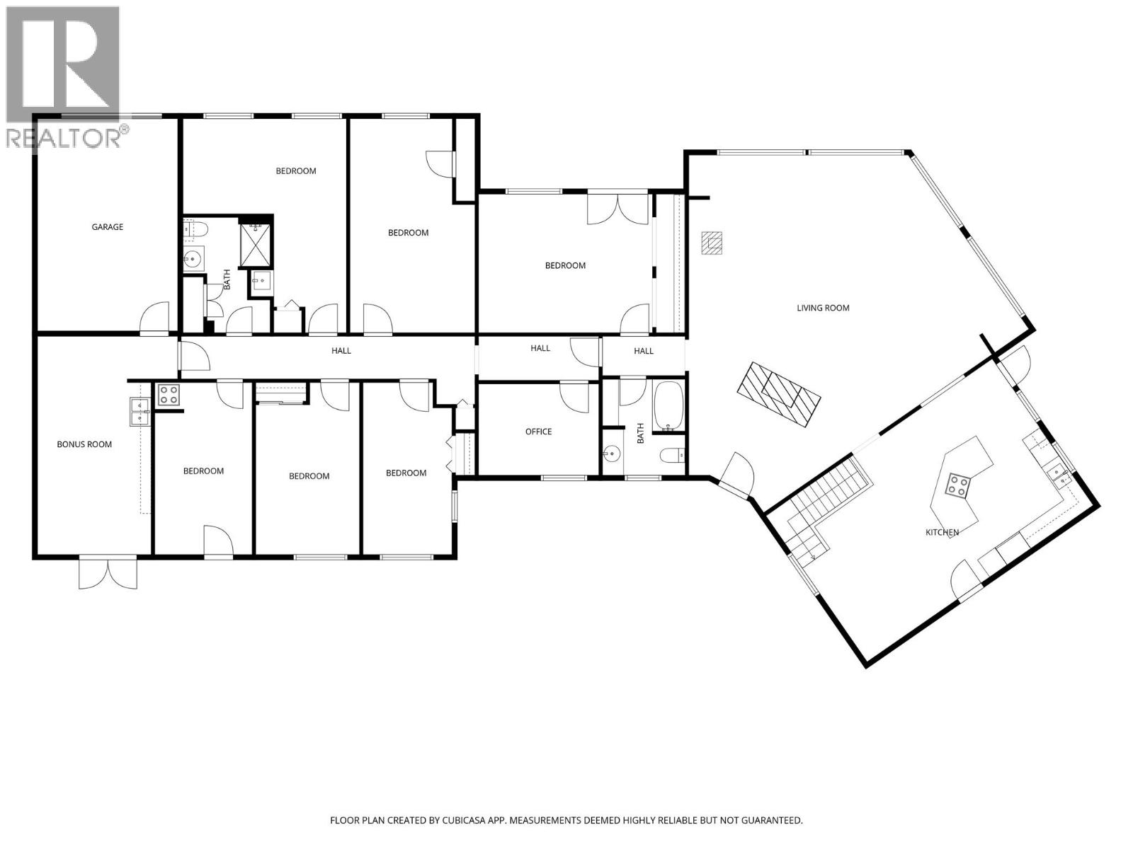
A rare opportunity to own 200 acres in an unbeatable location just a couple of minutes from town, with nearly 2 km of Granby River frontage and all the infrastructure in place for country living, a horse enthusiast or a cattle operation. This one-of-a-kind property is well set up for ranch use, featuring 2 hay barns, equipment sheds, a workshop, and a wheel line move with pump house for irrigation (the pump house has not been used since 2018). The impressive main log home offers 3035 sq ft on the main floor alone, with a vaulted-ceiling living room, kitchen, dining area, entryway, primary bedroom, 5 additional bedrooms, 2 bathrooms, an office, storage room, and attached single garage. The covered deck takes in beautiful mountain and valley views overlooking the property. The lower level adds even more functional space with a rec room, office, laundry, wood storage, 2 bedrooms, and another storage room. A second log home adds excellent potential for extended family, guests, or ranch help, with living, kitchen, dining, and a half bath upstairs, plus 3 bedrooms, a bathroom, and an attached double garage downstairs. With its incredible location, river frontage, and setup for livestock or hay production, this is a truly special rural property with endless potential. Call your agent to view today! (id:60457)