










































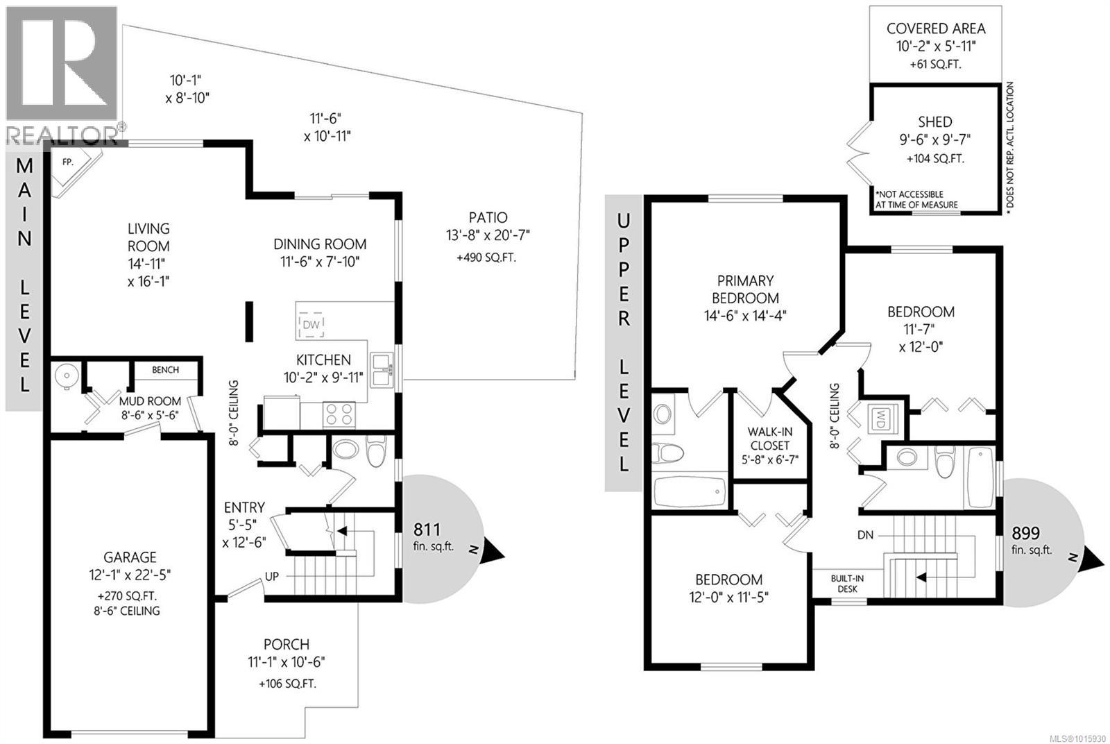
Welcome to this beautifully maintained 3-bedroom, 3-bath home located on a quiet, family-friendly street in the heart of Duncan. Perfectly situated within walking distance to grocery stores, shops, restaurants, schools, and even baseball fields, this home offers convenience and community all in one. Step inside to a bright, open-concept main floor featuring a cozy gas fireplace and a modern white kitchen—ideal for entertaining and everyday living. Upstairs, you’ll find three spacious bedrooms plus a convenient office nook—perfect for remote work or homework space. The large primary suite includes a walk-in closet and a stylish 4-piece ensuite, while two additional bedrooms share another full bath. The upper-level laundry adds everyday convenience. Enjoy easy outdoor living with a low-maintenance backyard designed for relaxation and entertaining. The large patio and covered BBQ area make hosting a breeze, while the private yard features raised garden beds, a shed perfect for storage or a creative studio, and double gates for RV or boat parking.This home is move-in ready and located in a welcoming neighbourhood with great neighbours and a peaceful atmosphere. New Roof 2025! Don’t miss your chance to own this wonderful Duncan gem! (id:60457)
| Property Type | Duplex |
| Style of House | Other |
| Bedrooms | 3 |
| Bathrooms | 3 |
Asking Price | $639,000 |
Floor Area Price per SqFt | 1,980 sqft $323 |
| Age | 19 years (2006) |
| Property Taxes | $3,986 |
| Ownership Interest | Condo/Strata |
| PID | 026-682-265 |
| Seller's Agent | Royal LePage Nanaimo Realty LD |
| ✓ Central location | ✓ Curb & gutter |
| ✓ Level lot | ✓ Southern exposure |
| ✓ Family Oriented | ✓ Washer |
| ✓ Refrigerator | ✓ Stove |
| ✓ Dryer |
| Year | Total | Land | Impr. | YoY Change | Taxes |
|---|---|---|---|---|---|
The displayed rates are provided as guidance only, are not guaranteed, and are not to be considered an approval of credit. Approval will be based solely on your personal situation. You are encouraged to speak with a Mortgage Professional for the most accurate information and to determine your eligibility.
| School Name | Address | Details |
|---|---|---|