
















































MLS® 1018214 |
Duncan | East Duncan
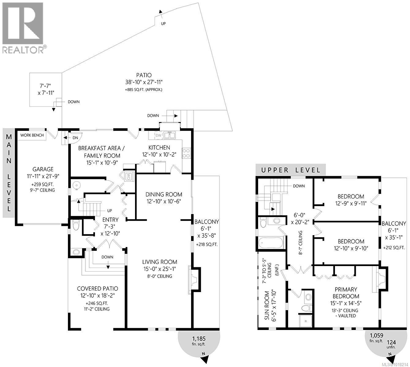
Expansive Forested Retreat with Nearly 1,000 Sq. Ft. of Outdoor Entertaining Space nestled in one of Cowichan Valley's most desirable neighbourhoods, close to Maple Bay Elementary, parks and trails and minutes from Maple Bay Marina. Welcome to this beautifully crafted 3bed/3bath home offering over 2,200 sq. ft. of comfortable living space on a private, forested 9,000 sq. ft. lot. Designed for both relaxation and entertaining, this property features a massive newly built backyard wood deck plus 4 covered porches—perfect for soaking in nature year-round. Inside, you’ll find large principal rooms with wood parquet flooring throughout and a custom kitchen featuring solid wood cabinetry and generous workspace. The upper-level sunroom provides the ideal spot to grow plants or unwind in natural light, while the covered porches on both levels extend your living space outdoors. The primary suite is a true retreat, with a cozy fireplace, large windows overlooking Quamichan Lake, a private ensuite with a spacious shower, and its own sun porch for year round veggies. The second bedroom opens directly onto a large upper-level patio with tranquil views of the babbling stream that borders the property. Enjoy evenings under the stars in your hot tub, surrounded by a fully fenced backyard and mature trees for privacy. Additional highlights include a double driveway with ample parking, Boat/RV parking, and a peaceful setting adjacent to nature—just minutes from town, shopping, schools, park, trails and Maple Bay Marins . Discover Maple Bay living at its best—where comfort, craftsmanship, and connection to nature come together. (id:60457)
| Property Type | House | 
| Bedrooms | 3 | 
| Bathrooms | 3 | 
| Asking Price | $799,000 | 
| Floor Area Price per SqFt | 2,244 sqft $356 | 
| Age | 44 years (1981) | 
| Land Size Price per Land SqFt | 0.21 ac (9,000 sqft) $88.78 | 
| Property Taxes | $4,823 | 
| Ownership Interest | Freehold | 
| PID | 001-301-179 | 
| Seller's Agent | Royal LePage Nanaimo Realty LD | 
| ✓ View (Lake view, Mountain view) | ✓ Central location | 
| ✓ Curb & gutter | ✓ Private setting | 
| ✓ Southern exposure | ✓ Wooded area | 
| ✓ Sloping | ✓ Marine Oriented | 
| ✓ Central air conditioning | 
| Year | Total | Land | Impr. | YoY Change | Taxes | 
|---|---|---|---|---|---|
The displayed rates are provided as guidance only, are not guaranteed, and are not to be considered an approval of credit. Approval will be based solely on your personal situation. You are encouraged to speak with a Mortgage Professional for the most accurate information and to determine your eligibility.
| School Name | Address | Details | 
|---|---|---|