
























MLS® R3065893 |
BC Northern
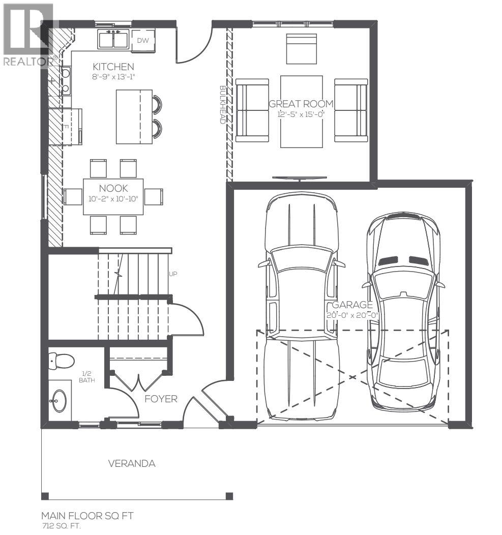
* PREC - Personal Real Estate Corporation. Fantastic home in sought after neigbourhood! This compact 4 bed/3.5 bath home offers it all. With classy upgrades throughout and a well laid out floor plan means you can simply move in and enjoy! The open living space is perfect for entertaining with great access to the back yard deck. You'll find 3 bedrooms, 2 bathrooms and the laundry on the upper level. Head to the basement for a second living space, 4th bedroom and 4th bathroom. Plus, the unfinished utility room is spacious enough for storage. Built in 2022, this efficient home boasts an electric furnace & heat pump to make for some very low hydro bills. The large lot is fully fenced and backs onto a forested lot. Book your viewing today! (id:60457)
| Property Type | House |
| Bedrooms | 4 |
| Bathrooms | 4 |
Asking Price | $749,900 |
Floor Area Price per SqFt | 2,240 sqft $335 |
| Age | 3 years (2022) |
Land Size Price per Land SqFt | 0.20 ac (8,679 sqft) $86.40 |
| Property Taxes | $5,779 |
| Ownership Interest | Freehold |
| PID | 030-930-197 |
| Seller's Agent | RE/MAX Coast Mountains |
| Year | Total | Land | Impr. | YoY Change | Taxes |
|---|---|---|---|---|---|
The displayed rates are provided as guidance only, are not guaranteed, and are not to be considered an approval of credit. Approval will be based solely on your personal situation. You are encouraged to speak with a Mortgage Professional for the most accurate information and to determine your eligibility.
| School Name | Address | Details |
|---|---|---|