
























































MLS® 1018328 |
Saanich East | Arbutus
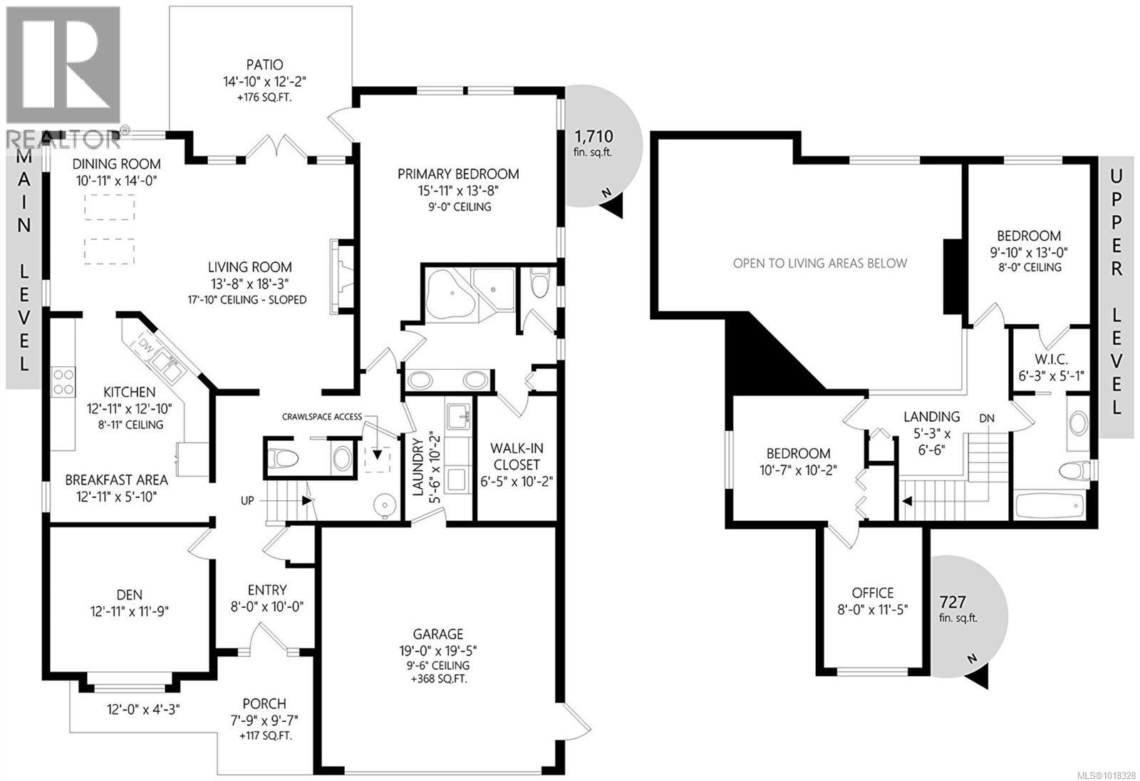
3BR, Den and 3BA Executive Home on Graduation Place in the desirable University Ridge of Gordon Head will meet almost everyone’s need. The primary bedroom conveniently located on the main floor, and it has an ideal open plan layout that offers both luxury and practicality. The great room has a 20-foot vaulted ceiling and a gas fireplace. The den on the main that can act as an office and more. Upstairs there are two bedrooms and a bathroom. One of the bedroom offers 2rooms, ideal for an office, exercise room, playroom and more. Double car garage and walk in laundry room. Private fenced backyard. It is minutes from UVic, shopping, schools, parks and ocean. Whether you are looking for a home with not stairs for yourself but would like extra space for guests or family members, this is the home for you. Great locations. Great home. Don’t miss out! (id:60457)
| Property Type | House |
| Bedrooms | 3 |
| Bathrooms | 3 |
Asking Price | $1,595,000 |
Floor Area Price per SqFt | 2,805 sqft $569 |
| Age | 22 years (2003) |
Land Size Price per Land SqFt | 0.11 ac (5,000 sqft) $319 |
| Property Taxes | $7,259 |
| Ownership Interest | Freehold |
| PID | 025-488-198 |
| Seller's Agent | DFH Real Estate Ltd. |
| ✓ Level lot | ✓ Private setting |
| ✓ Rectangular |
| Year | Total | Land | Impr. | YoY Change | Taxes |
|---|---|---|---|---|---|
The displayed rates are provided as guidance only, are not guaranteed, and are not to be considered an approval of credit. Approval will be based solely on your personal situation. You are encouraged to speak with a Mortgage Professional for the most accurate information and to determine your eligibility.
| School Name | Address | Details |
|---|---|---|