







































MLS® R3063683 |
BC Northern
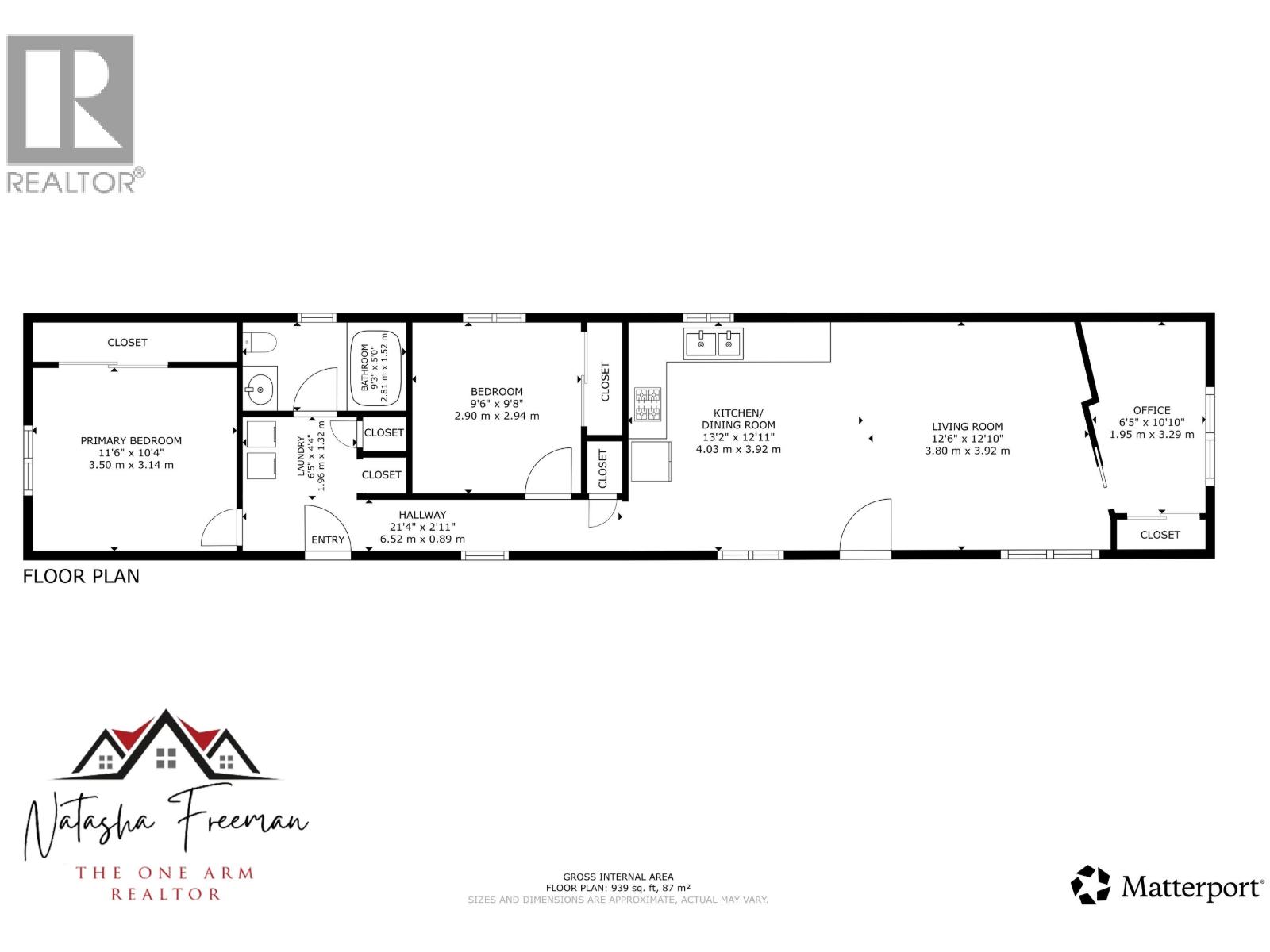
Just Over 6 Acres of Tranquil Living Escape to your own private retreat with this charming 2020 2bedroom + office, 1bath mobile home set on just over 6 acres of beautifully varied landscape. The property is partially cleared, offering the perfect balance of open space and natural privacy. Enjoy the convenience of a serviced RV spot and a powered greenhouse, ideal for gardening. The land features seasonal creeks, a peaceful year-round Koi pond, and a built-in fire pit—perfect for unwinding under the stars. Inside, you’ll find a unique indoor water feature and a stunning kitchen island crafted from Live Edge Fir trees grown right on the property, adding warmth and character to the home. (id:60457)
| Property Type | Manufactured Home/Mobile |
| Bedrooms | 2 |
| Bathrooms | 1 |
Asking Price | $479,900 |
Floor Area Price per SqFt | 867 sqft $554 |
| Age | 5 years (2020) |
Land Size Price per Land SqFt | 6.06 ac (263,974 sqft) $1.82 |
| Property Taxes | $2,286 |
| Ownership Interest | Freehold |
| PID | 006-027-679 |
| Seller's Agent | Royal LePage Aspire Realty (Que) |
| ✓ Washer | ✓ Refrigerator |
| ✓ Dishwasher | ✓ Stove |
| ✓ Dryer |
| Year | Total | Land | Impr. | YoY Change | Taxes |
|---|---|---|---|---|---|
The displayed rates are provided as guidance only, are not guaranteed, and are not to be considered an approval of credit. Approval will be based solely on your personal situation. You are encouraged to speak with a Mortgage Professional for the most accurate information and to determine your eligibility.
| School Name | Address | Details |
|---|---|---|